020 Erweiterung Schulanlage Neufeld Sursee

Mit dem Zusammenschluss von Kindergarten und Primarschule und der Einführung der integrativen Förderung musste die rund 50 Jahre alte Schulanlage Neufeld den räumlichen Anforderungen heutiger Unterrichtsformen angepasst werden.

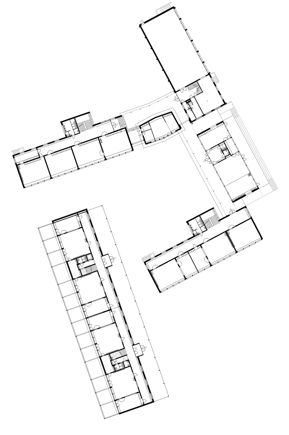
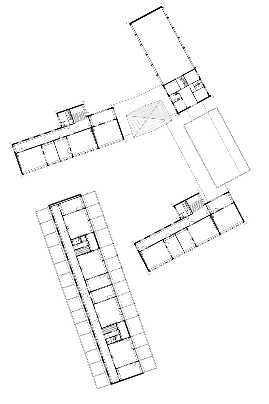
Der in der ersten Etappe realisierte Neubau „Trakt Drei“ beherbergt die Basisstufe. Zweigeschossig, parallel zur Bifangstrasse positioniert, bildet er zusammen mit den Bestandsbauten ein Ensemble, welches den Pausenplatz räumlich fasst und die Schulanlage gegen die Strasse hin abschliesst.

Das in Hybridbauweise konstruierte Gebäude ist linear in Schichten aufgebaut: Der als Garderobe dienende Korridor, vier Klassenzimmer mit je einem Gruppen- und Materialraum und der mit Pergolen und Markisen beschattete Unterricht im Freien. Zwei Treppen verbinden die beiden Geschosse. Deren gespiegelte Disposition mit dem aufgeständerten Balkon ermöglicht es, den darunter entstehenden Raum als Pausenhalle zu nutzen.

Die zweite Etappe umfasst den Neubau für die Tagesstrukturen – Mittagstisch, Hausaufgabenhilfe und Betreuung ausserhalb der Schulzeit – im Zentrum der Anlage und den Umbau der beiden bestehenden Schultrakte mit der Umwandlung einzelner Zimmer in die dringend benötigten Gruppenräume. Die Anpassung der Turnhalle an heutige sicherheitstechnische Standards und die Sanierung der Garderoben bilden den Abschluss der Arbeiten.

Sowohl im Neubau wie auch in den Bestandsbauten schaffen Verbindungstüren und Sichtbezüge unter den einzelnen Räumen die nötige Transparenz und Flexibilität für einen zeitgemässen Schulunterricht. Rohe Materialien und eine neutrale Farbgebung vermitteln dabei das angestrebte Bild einer Lern-Werkstatt und lassen ein Maximum an individuellem Gestaltungsraum zu.

Mit dem Abschluss der Arbeiten und dem Bezug der Räumlichkeiten bietet die Schulanlage Neufeld, rund 60 Jahre nach der Ersteröffnung, attraktiven Schulraum für rund 350 Kinder.

Projektwettbewerb 1. Preis, 2009
Realisierung 1. Etappe 2011-2012, 2. Etappe 2014-2015
Bauherrschaft Einwohnergemeinde Stadt Sursee

In Zusammenarbeit mit kunzarchitekten, Sursee
Team: Lukas Meinen, Michelle Lieberherr
Projektleitung: Andreas Amrein, Hans Kunz

1. Etappe: Tragwerk Massivbau iPlus Bauingenieure, Sursee; Tragwerk Holzbau Lauber Ingenieurbüro für Holzbau, Luzern; Haustechnik Fischer Engineering, Sempach; Elektroplanung Wey + Partner, Sursee; Sanitärplanung Keller Haustechnikplaner Sanitär, Sursee; Umgebung Appert & Zwahlen, Cham
Fotos Bruno Meier, Sursee

2. Etappe: Tragwerk CES Bauingenieure, Sursee; Haustechnik ETU Engineering, Sempach; Elektroplanung Wey + Partner, Sursee; Sanitärplanung Keller Haustechnikplaner Sanitär, Sursee
Fotos Bruno Meier, Sursee